Ref.: 91881 – Terrassa – Casas o chalets
Preu: 139.000 €
DESCRIPCIÓ
Descripció de la Parcel·la
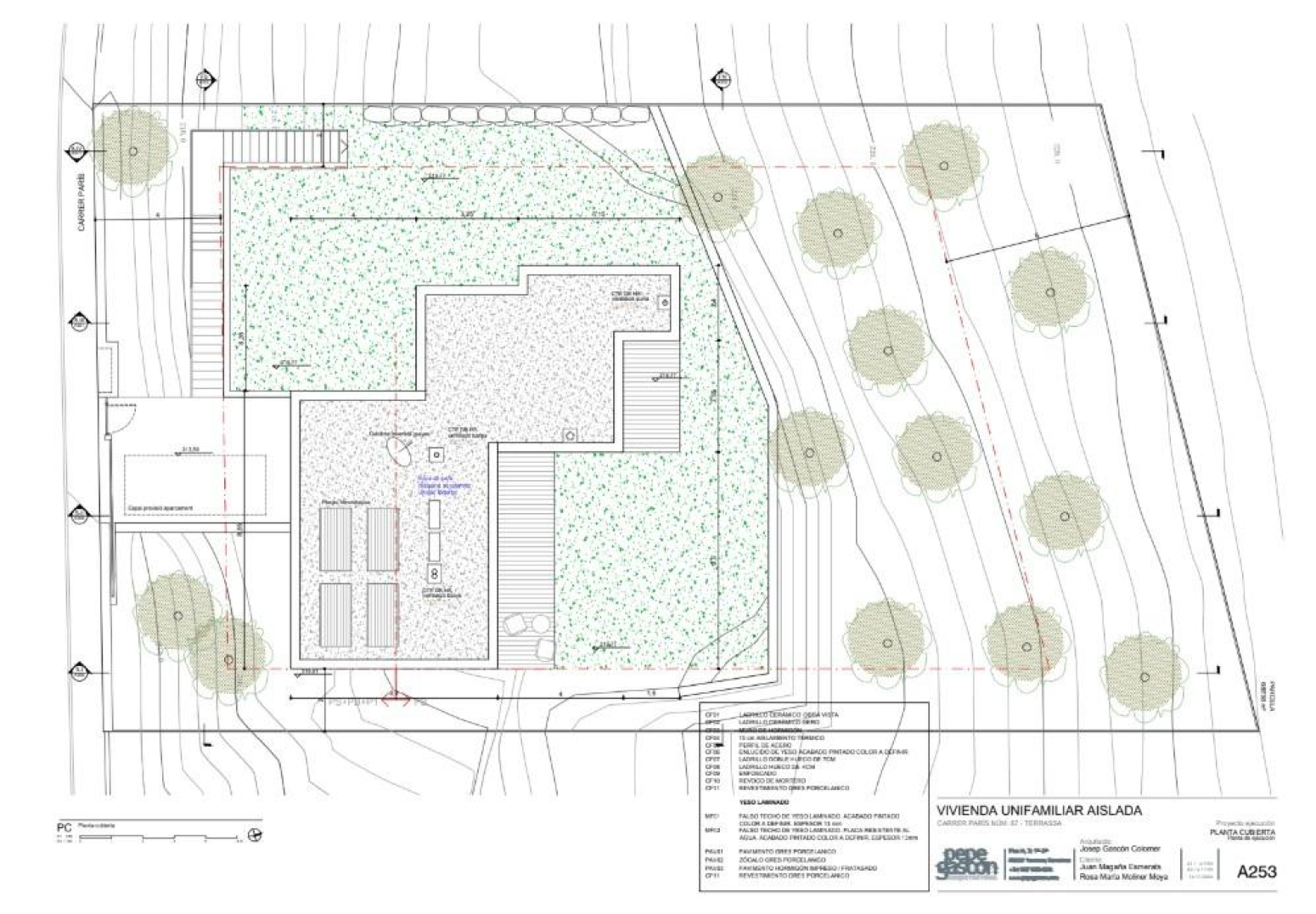
PARCEL·LA EN LES FONTS – 689 m² – Orientació Sud – Vistes Despejades – Projecte Arquitectònic – Llicència d’Obres Vàlida fins al 2027.
Ja siguis un particular, promotor o inversor, aquesta és una gran oportunitat. Et presentem una exclusiva parcel·la urbana a la codiciada zona de LES FONTS, a TERRASSA, perfecta per a qui somia amb construir la seva llar des de zero, en un entorn que combina el millor de dos mons: tranquil·litat residencial i proximitat urbana.
Ubicació Privilegiada
Situada en un carrer tranquil, amb vistes despejades i excel·lent orientació, aquesta parcel·la ofereix un entorn serè envoltat de natura, ideal per a una vida familiar pausada, sense renunciar a la connexió amb el dia a dia. En només 5 minuts pots estar al centre de Terrassa, amb tots els seus serveis, comerços, escoles i connexions ferroviàries (FGC – estació de Les Fonts) que et porten a Barcelona en menys de 30 minuts.
Espai per Somiar
Amb una superfície generosa, la parcel·la permet dissenyar una casa unifamiliar àmplia, lluminosa i adaptada al teu estil de vida. Jardí i terrasses amb vistes… aquí tu decideixes com viure.
Avantatges Clau
- Entorn residencial tranquil, familiar i segur.
- Carrer amb poc trànsit, ideal per a famílies amb nens.
- Orientació ideal per aprofitar la llum natural durant tot el dia.
- Serveis d’aigua, llum, clavegueram i gas disponibles.
- Zona en creixement amb gran potencial de revalorització.
Una Vida amb Ritme Propi
LES FONTS és una joia discreta: natura, senders, aire pur i un ritme de vida més lent, però amb tot a mà. Aquí pots despertar-te amb el cant dels ocells i estar en una reunió a Barcelona en menys d’una hora. La vida tranquil·la, sense desconnexió.
Et imagines dissenyant la teva casa aquí, envoltat de verd, amb espai perquè els teus fills juguin i perquè tu finalment tinguis aquell estudi, hort o porxo que tant has somiat?









