Ref.: M1156 – Matadepera – Casas o chalets
Preu: 1.480.000 €
DESCRIPCIÓ
Referència: M1156
EXCLUSIVA CASA A L’URBANITZACIÓ VERGE DE MONTSERRAT
STYLEHOUSE presenta aquesta esplèndida propietat ubicada a l’urbanització Verge de Montserrat de Matadepera. La casa està construïda sobre una parcel·la de 800 m2, completament plana.
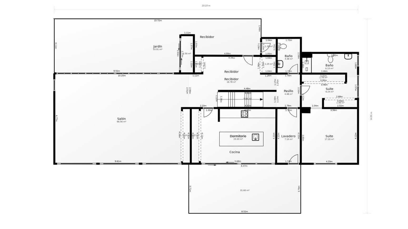
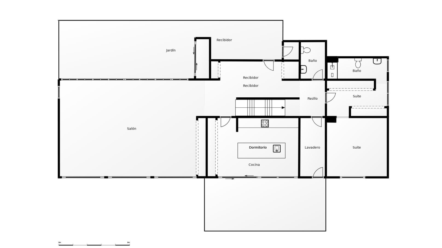
Distribució de la Casa
La vivenda consta de:
- Planta baixa
- Planta pis
- Sótano
- Espectacular piscina al jardí davanter
Planta Baixa
S’accedeix a la casa per la planta baixa des d’un ampli rebedor que dóna pas a un gran saló-menjador amb sortida al jardí, que compta amb una espaiosa zona chill out al costat de la piscina. La cuina, tipus office, és de disseny modern i molt lluminosa, amb sortida a la part posterior del jardí on es troba la barbacoa.
També a la planta baixa trobem:
- Aseu de cortesia
- Zona d’aigües
- Habitació doble amb bany en suite i vestidor
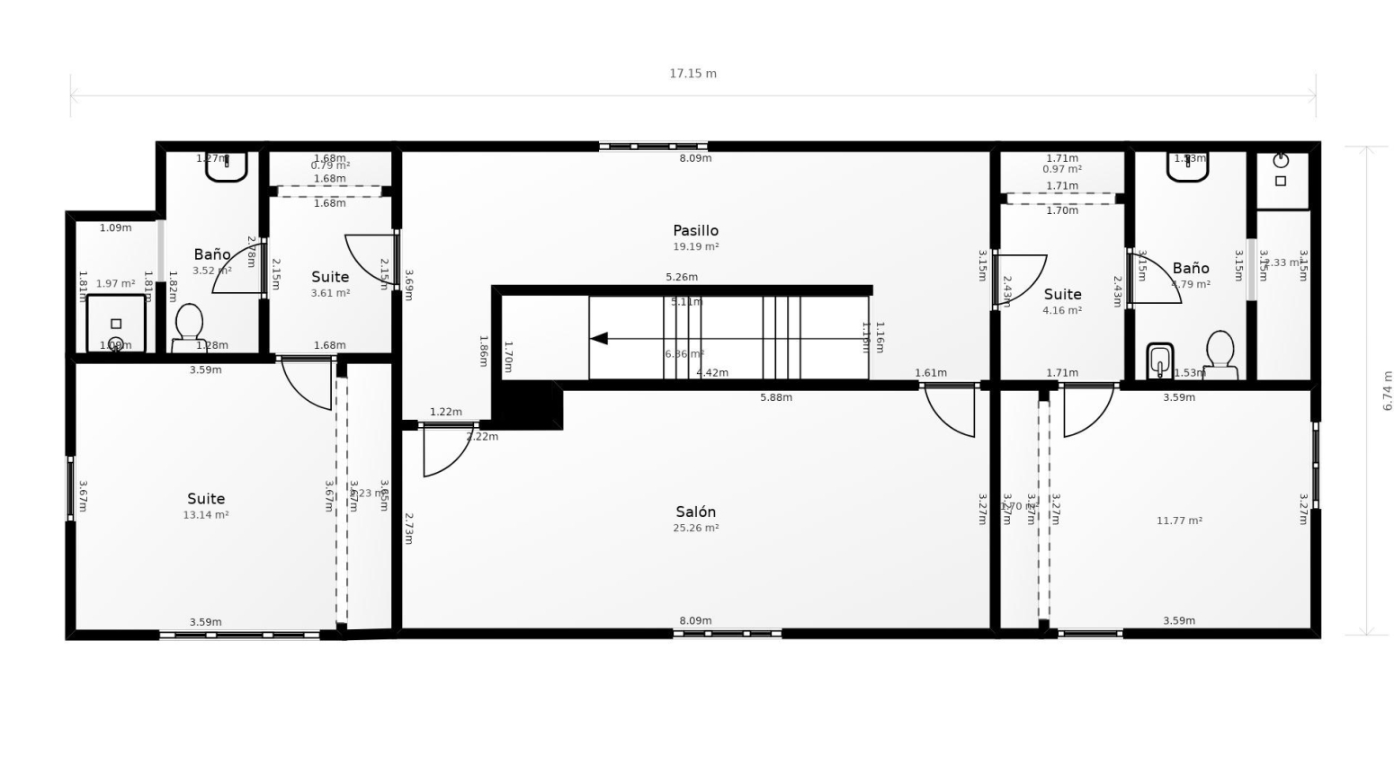
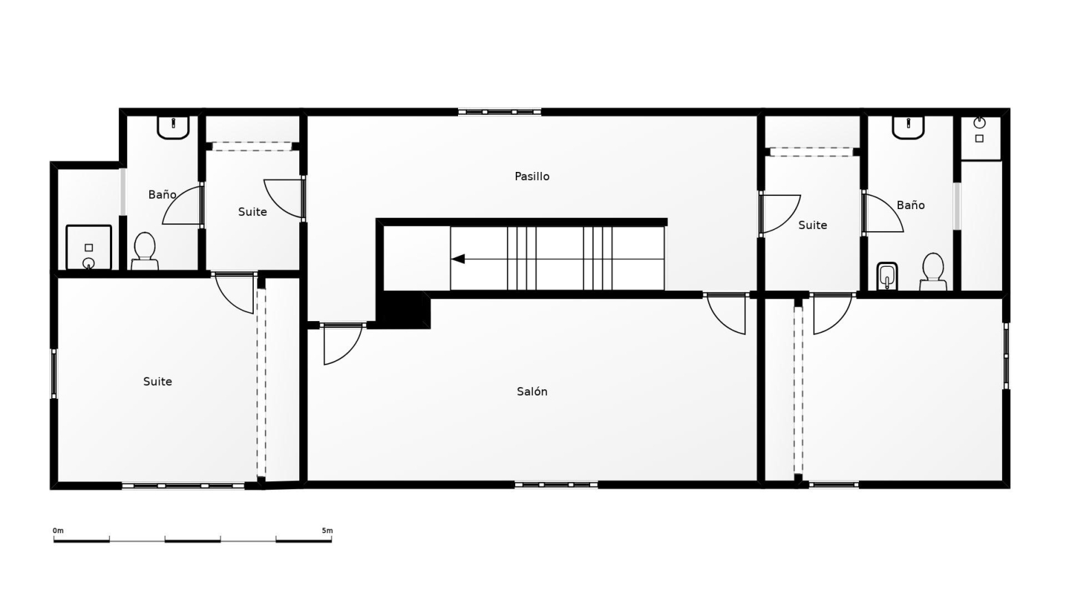
Primera Planta
A la primera planta trobem:
- Dues habitacions dobles, cadascuna amb el seu bany en suite
- Un lluminós estudi que pot ser transformat en una o dues habitacions individuals, adaptant-se a les necessitats familiars
Sótano
Des del rebedor de la planta baixa s’accedeix a la planta sótano de la casa, on es troba:
- Ampli garatge amb capacitat per a diversos cotxes
- Sala de màquines
- Bodega, una veritable joia per als amants de les reunions íntimes
Característiques Addicionals
Aquesta vivenda, construïda el 2017 amb materials de gran qualitat i un disseny espectacular, compta amb:
- Jardí de somni
- Magnífica zona de piscina
Disposa de totes les comoditats necessàries perquè els seus propietaris gaudeixin d’una vida fàcil i agradable en un entorn privilegiat, per la seva tranquil·litat i proximitat al centre de Matadepera i a tots els serveis que ofereix.
Sense dubte, és una peça única per qui busca l’excel·lència en tots els sentits.

































