Preu: 480.000 €

DESCRIPCIÓ

 

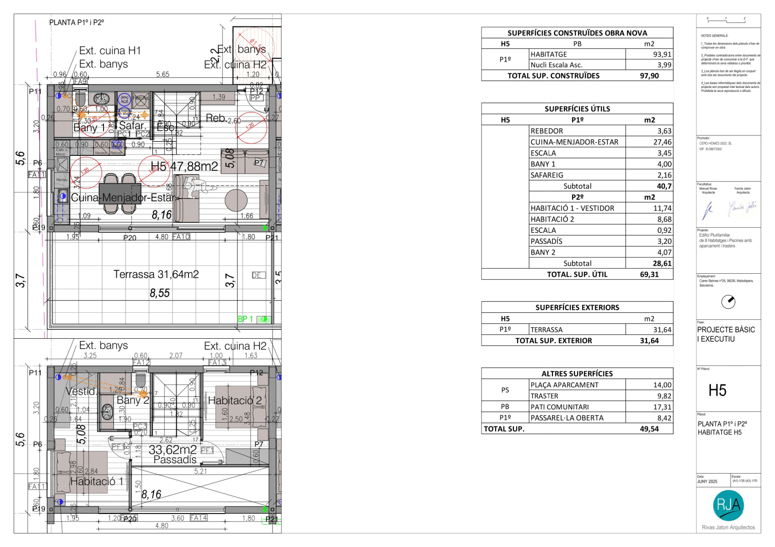
REF. M1146. BALMES PLACE RESIDENCIAL

Exclusivitat i confort al centre de Matadepera.

Ubicat al carrer Balmes 25, Matadepera, aquest exclusiu projecte ofereix 8 habitatges plurifamiliars d’obra nova. Les tipologies disponibles inclouen:

  • 1 planta baixa
  • 4 dúplex

Dissenyades pel reconegut equip de Cero Homes i Rivas Jaton Arquitectes, els habitatges tenen superfícies que oscil·len entre 82 i 94 m².

Les plantes baixes ofereixen jardí i piscina privada, mentre que els dúplex compten amb una espectacular terrassa de més de 30 m² a la planta superior.

A més, tots els habitatges inclouen la possibilitat de fins a 2 places d’aparcament i un traster al soterrani. També disposaran de sistemes d’aerotèrmia i plaques solars, assegurant eficiència energètica i sostenibilitat.

Amb una ubicació immillorable, Balmes Place Residencial es troba a prop d’escoles, transports i la vibrant vida urbana de Matadepera, proporcionant la combinació perfecta de funcionalitat i exclusivitat.

Vine i descobreix el teu nou hogar a Balmes Place Residencial!

CARACTERÍSTIQUES

Referència

M1146

Superfície finca (m²)

Preu

480.000 €

Superfície útil (m²)

85

Tipus d’immoble

Pisos

Habitacions

2

Població

Matadepera

Banys

2

Província

Barcelona

Piscina

Consum energètic

N/D

Classe energètica

N/D

Emissions CO₂

N/D

Classe Emissions

N/D