REF. 91929: Ideal per a Famílies que Busquen Espai i Ubicació Pràctica
Et presentem un habitatge ideal per a famílies que busquen espai, comoditat i una ubicació pràctica. Situat en una tranquil·la barriada amb ambient veïnal, aquest ampli pis destaca per les seves 4 habitacions, perfectes per adaptar a dormitoris, despatx o zona de jocs.
L’habitatge compta a més amb un gran pati interior d’ús privatiu, ideal per mantenir un còmode rentador independent, un plus molt valorat en el dia a dia. La seva ubicació és un altre dels seus grans atractius: es troba molt a prop dels principals accessos al centre de la ciutat, la qual cosa garanteix una comunicació ràpida i fluida. A més, està a escassos minuts de la zona esportiva municipal, perfecta per a qui gaudeix d’un estil de vida actiu o necessita instal·lacions esportives a mà.
En resum, un pis funcional, ampli i amb totes les condicions per convertir-se en la llar perfecta per a una família que busca qualitat de vida sense renunciar a una bona connexió amb la ciutat.
Detalls de la Propietat
Finca: 1974
Superfície construïda: 91 m²
Superfície útil: 84 m²
Distribució de l’Habitatge
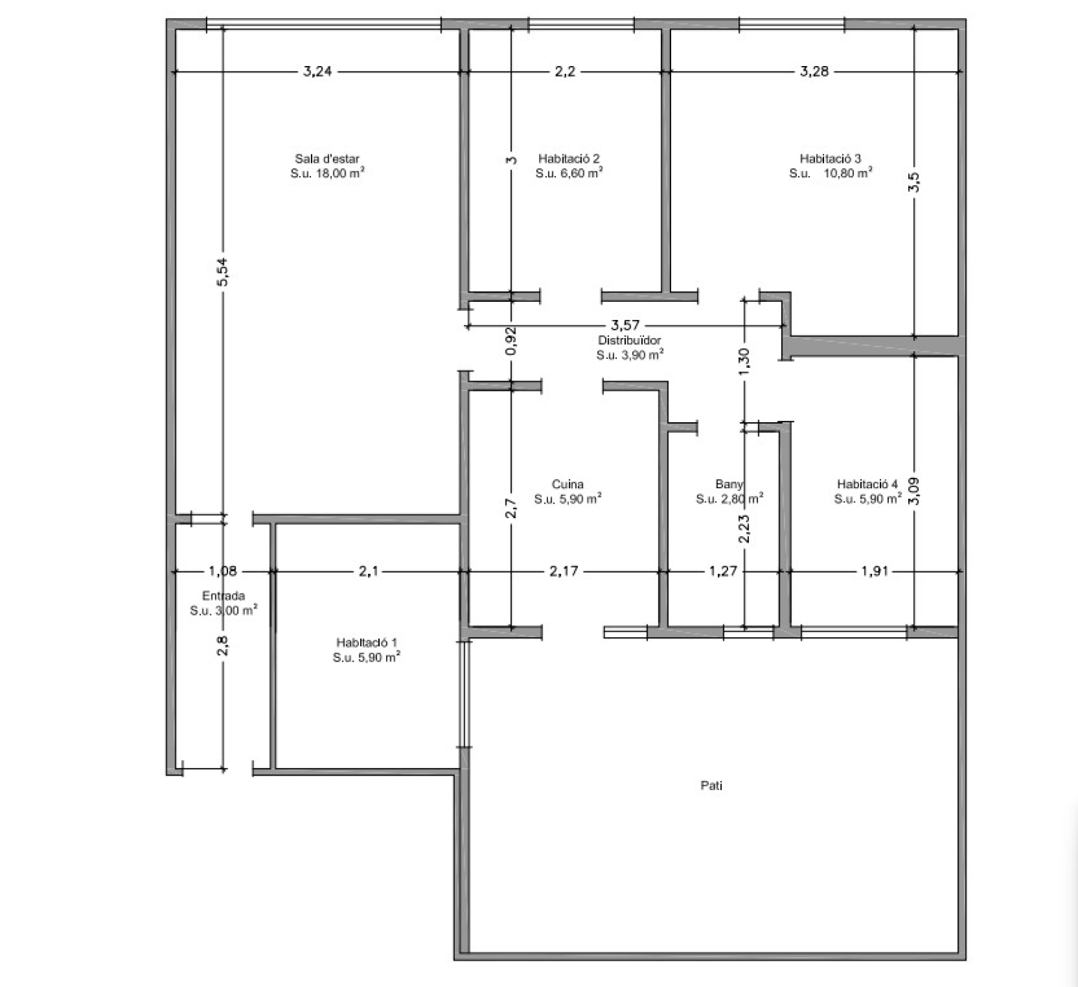
Hall i distribuïdor: Accés a una habitació i al menjador
Saló-menjador: 18 m² amb gran finestral
Cuina: 5,90 m² amb sortida a rentador
Gran pati interior: Actualment en ús com a rentador, amb instal·lacions fetes
Habitació 1: 10,80 m², exterior
Habitació 2: 6,60 m², exterior
Bany: 2,80 m² amb plat de dutxa petit
Habitació 3: 5,90 m², exterior
Habitació 4: 5,90 m², interior
*El preu NO inclou despeses de gestió.
CARACTERÍSTIQUES
Referència
91929
Superfície finca (m²)
Preu
195.000 €
Superfície útil (m²)
91
Tipus d’immoble
Pisos
Habitacions
4
Població
Terrassa
Banys
1
Província
Barcelona
Piscina
Consum energètic
N/D
Classe energètica
N/D
Emissions CO₂
N/D
Classe Emissions
N/D
Vols més informació sobre aquest immoble?
Indica'ns la referència i el nostre equip d’agents es posarà en contacte amb tu el més aviat possible.