Preu: 290.000 €

DESCRIPCIÓ

Casa en Planta al Barri de Vallparadís

¡En exclusiva de Stylehouse!

Ubicada al barri de Vallparadís, aquesta propietat es troba a:

  • A 1 minut del Parc de Vallparadís
  • A 1 minut de l’estació Vallparadís-Universitat

La casa està per reformar i compta amb:

  • Fachada de 4,8 m²
  • 1 saló-menjador amb sortida a pati
  • 1 cuina amb sortida a pati
  • 3 habitacions dobles
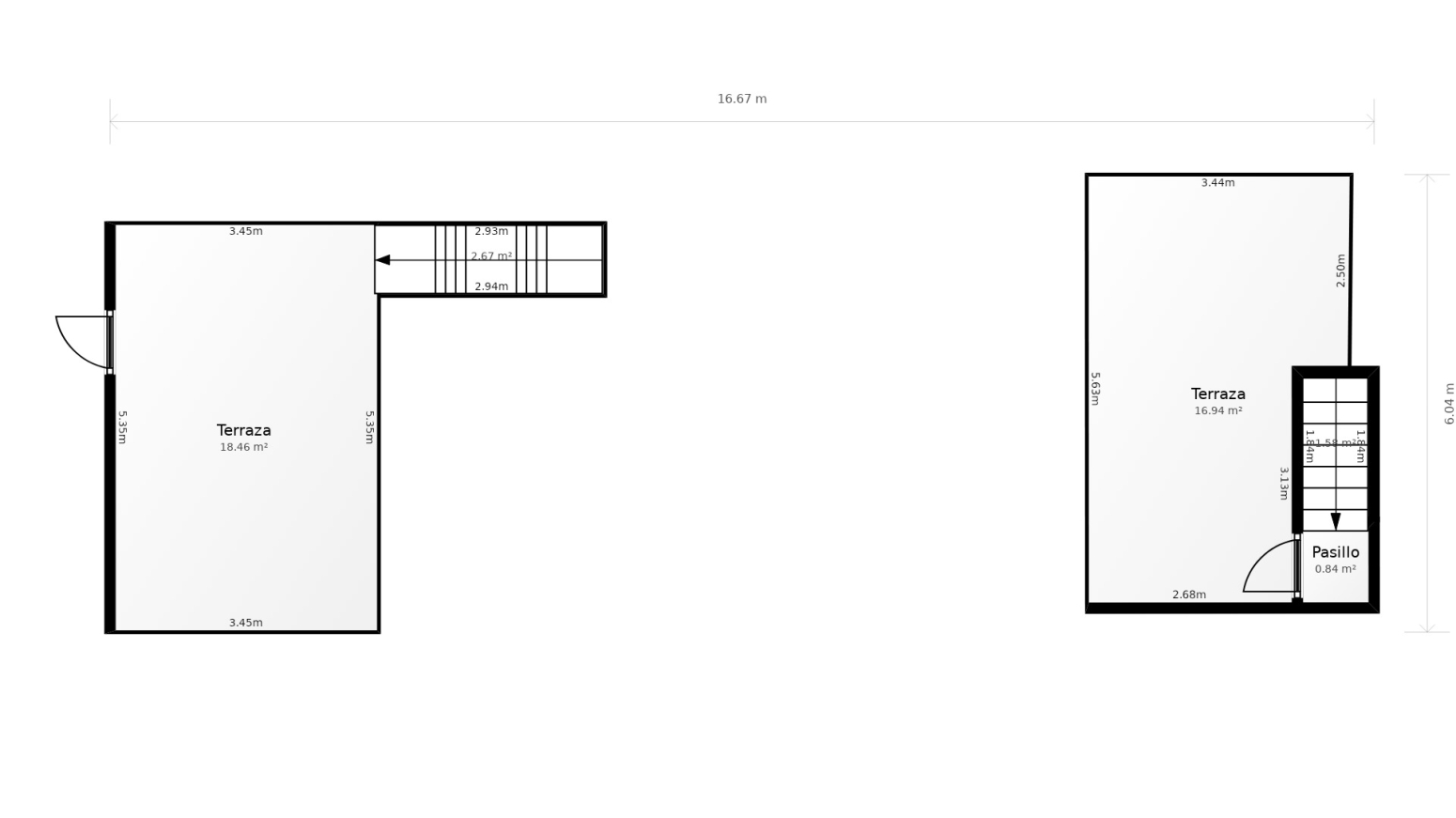
  • 2 terrasses
  • 1 rentador
  • 2 trasteros

Disposa d’un llienç en blanc per adaptar cada espai a les teves necessitats, ja sigui per vida familiar o teletreball. Aquesta és una oportunitat única de crear una casa 100% a la teva mida en un dels barris més demandats.

Una casa en planta no és només una llar, és una inversió amb ànima i projecció.

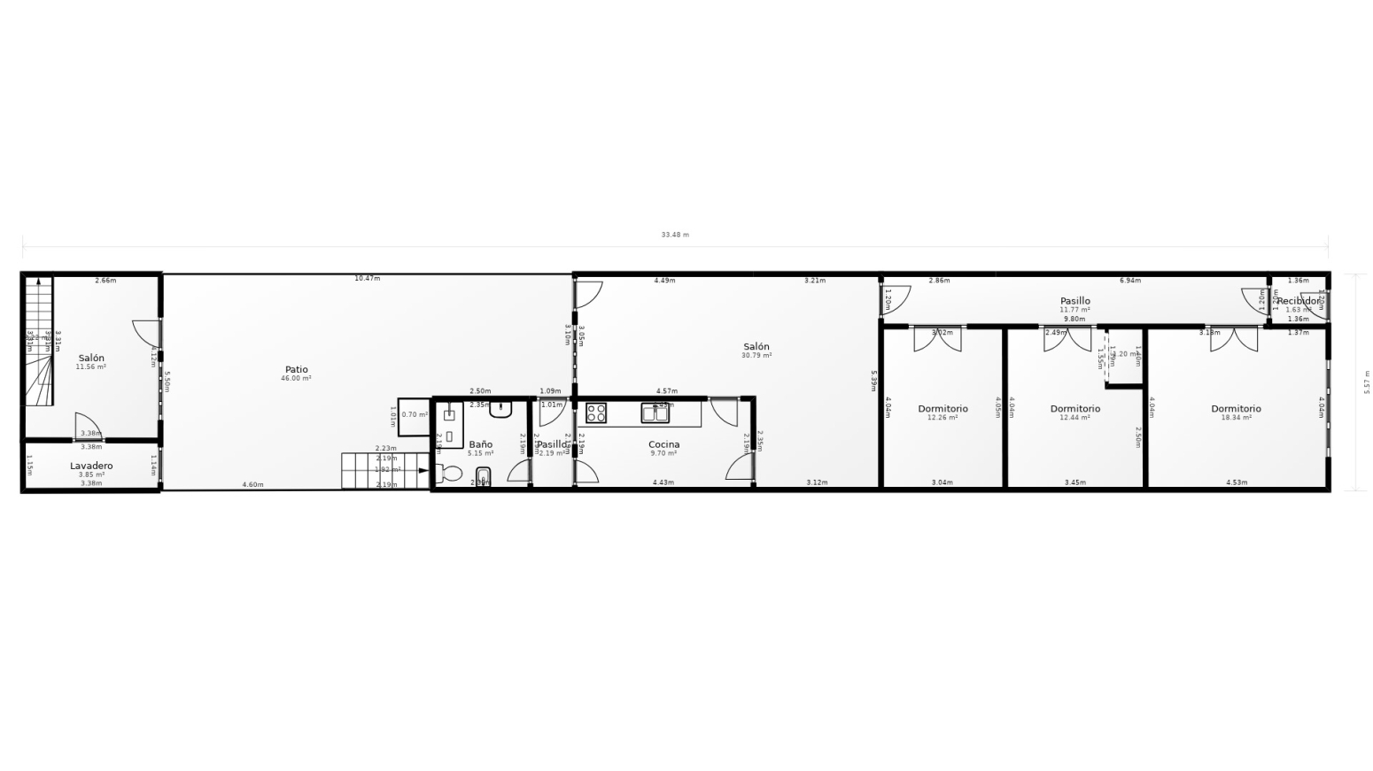
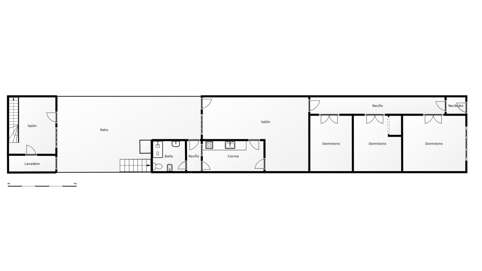
Superfície construïda: 120 m², amb 1 pati i 2 terrasses.

Distribució de l’Habitatge

  • Hall de 1,44 m² amb accés a l’habitatge
  • Saló-menjador de 27,46 m² amb sortida a pati i 2 accessos a la cuina
  • Cuina de 6,84 m² amb sortida a pati, per distribuïdor a bany i pati
  • Distribuïdor de 1,71 m² amb sortida a pati
  • Bany de 3,8 m² amb plat de dutxa
  • Passadís de 10,56 m² amb accés a habitacions
  • Habitació doble de 15,84 m² amb orientació est
  • Habitació doble de 9,72 m² interior
  • Habitació doble de 9,72 m² interior
  • Pati de 25,2 m² amb orientació oest, pou i magatzem, amb accés a terrassa
  • Magatzem de 12,54 m² amb armari encastat i rentador independent
  • Rentador de 3,2 m² amb instal·lacions i fregadero
  • Terrassa de 15,19 m² amb orientació est
  • Terrassa de 11,76 m² amb traster
  • Traster de 10,29 m² exterior

Nota: El preu no inclou despeses de gestió.

CARACTERÍSTIQUES

Referència

91907

Superfície finca (m²)

Preu

290.000 €

Superfície útil (m²)

120

Tipus d’immoble

Casas o chalets

Habitacions

3

Població

Terrassa

Banys

1

Província

Barcelona

Piscina

Consum energètic

N/D

Classe energètica

N/D

Emissions CO₂

N/D

Classe Emissions

G