Ref. 91875 – Una Casa Perfecta per Gaudir amb la Família
Aquesta casa de Stylehouse es troba en una zona tranquil·la, envoltada de comerç, restaurants, cafeteries i serveis. Està a un pas de tots els transports públics de la ciutat.
La propietat compta amb 150 m² i totes les comoditats necessàries per gaudir de la vida familiar. Disposa d’un pati que dóna accés a una magnífica sala d’estar amb cuina oberta, plaza d’aparcament pròpia i una espectacular terrassa/solàrium amb vistes a Montserrat.
La casa es compon de:
3 habitacions:
Una suite amb bany privat
Una habitació doble
Una habitació individual
3 banys complets
Una sala diàfana que pot convertir-se en una 4a habitació, sala de jocs o zona de treball
Amb acabats de primera qualitat i una luminositat excepcional, estem segurs que aquesta vivenda no li deixarà indiferent.
Distribució de la Vivenda
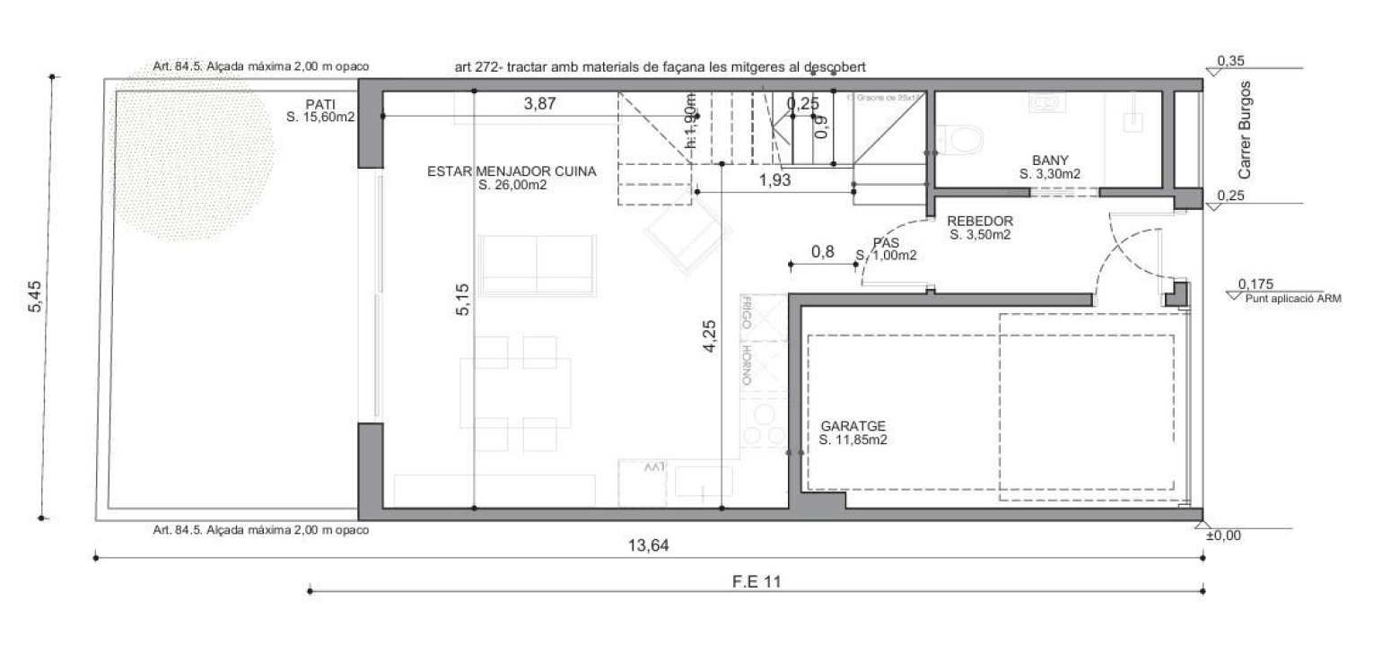
Planta Baixa
Sala d’estar amb cuina oberta de 26 m²
Bany de cortesia de 3 m²
Garatge de 12 m²
Pati de 16 m²
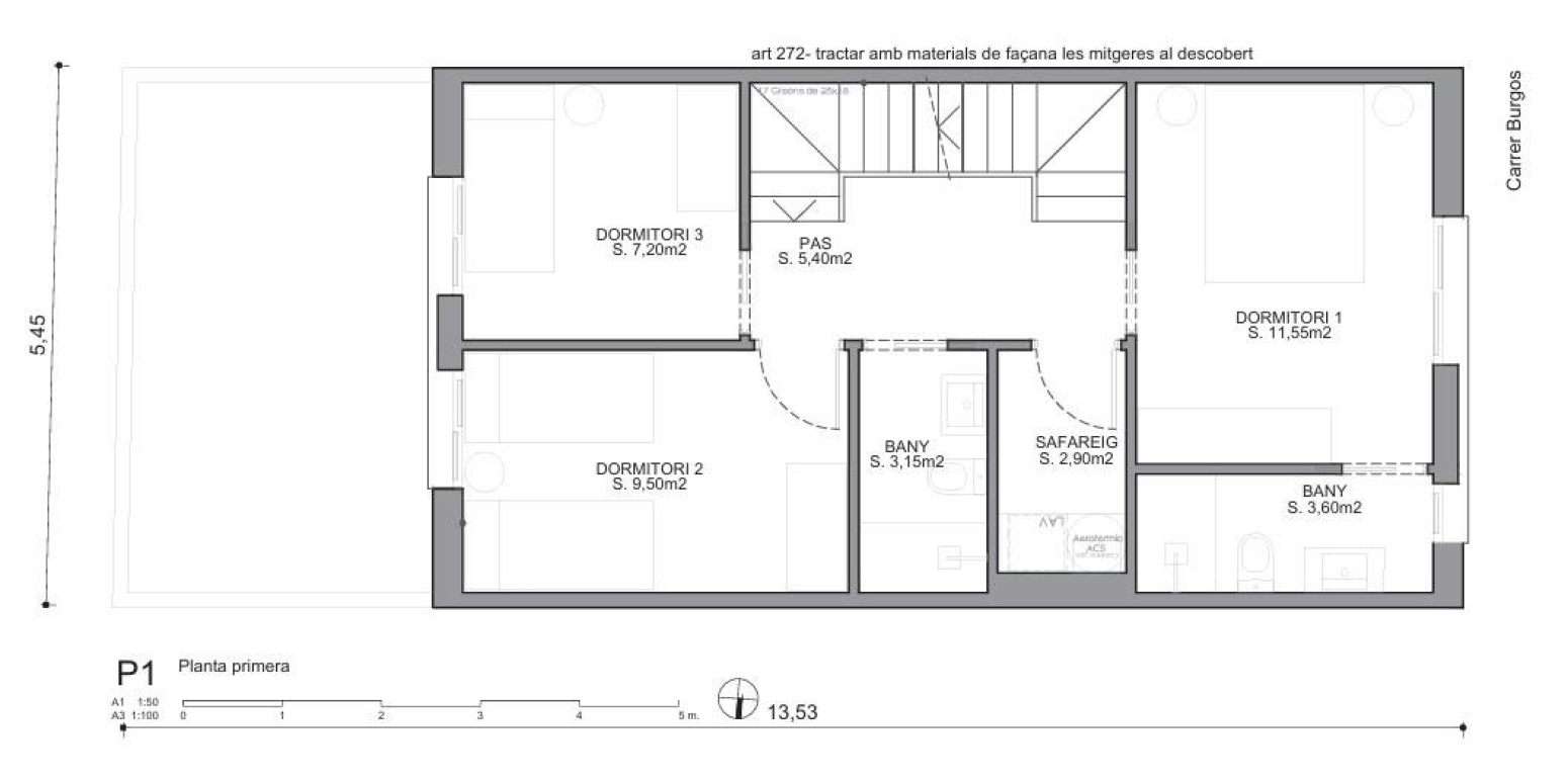
Planta 1
Habitació doble de 13 m² amb bany complet de 3 m²
Bany complet de 15 m²
Habitació individual de 7 m²
Habitació doble de 10 m²
Zona de rentat de 3 m²
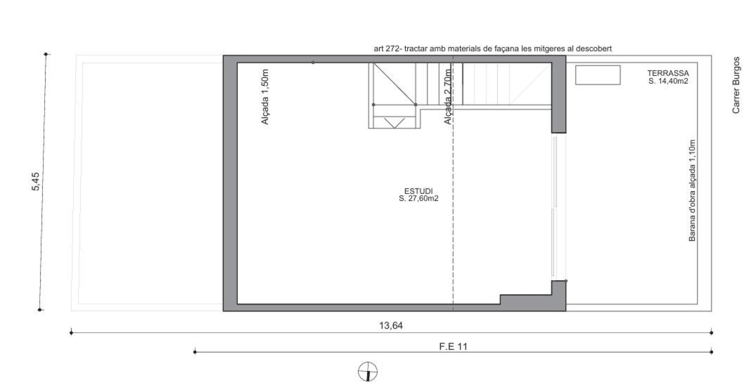
Planta 2
Sala diàfana de 27 m²
Terrassa de 15 m²
Nota: El preu no inclou impostos ni despeses de gestió.
CARACTERÍSTIQUES
Referència
91875_D
Superfície finca (m²)
Preu
355.000 €
Superfície útil (m²)
145
Tipus d’immoble
Casas o chalets
Habitacions
4
Població
Terrassa
Banys
3
Província
Barcelona
Piscina
No
Consum energètic
N/D
Classe energètica
N/D
Emissions CO₂
N/D
Classe Emissions
N/D
Vols més informació sobre aquest immoble?
Indica'ns la referència i el nostre equip d’agents es posarà en contacte amb tu el més aviat possible.