Preu: 410.000 €

DESCRIPCIÓ

Descripció de Propietat

Ref. 91811 – Preciosa Casa en Zona Tranquil·la

Descobreix aquesta hermosa casa llesta per entrar a viure, situada en una zona tranquil·la i familiar. La propietat compta amb jardí, dues terrasses i ampli aparcament per a tres cotxes.

Ubicació i Connectivitat

Aquesta casa de Stylehouse a La Gripia està molt ben comunicada, amb transport públic i tots els serveis a l’abast.

Característiques de la Propietat

Ens trobem davant d’una propietat de 212 m² ideal per a famílies, que inclou:

  • 4 àmplies habitacions
  • 2 banys complets
  • Gran cuina equipada
  • Sala d’estar/comedor gran i lluminosa amb sortida directa a una terrassa i accés al jardí

Distribució de l’Habitatge

La propietat es distribueix de la següent manera:

  • Planta -1: Garatge de 60 m²
  • Planta 0:
    • Sala d’estar/comedor de 28 m²
    • Cuina de 11 m² amb zona de comedor
    • Bany complet de 5 m²
    • Terrassa de 25 m²
    • Zona de rentat
    • Jardí de 30 m²
  • Planta 1:
    • Habitació doble de 10 m²
    • Bany complet de 6 m²
    • Habitació individual de 7 m²
    • Habitació doble de 11 m²
    • Habitació individual de 7 m²
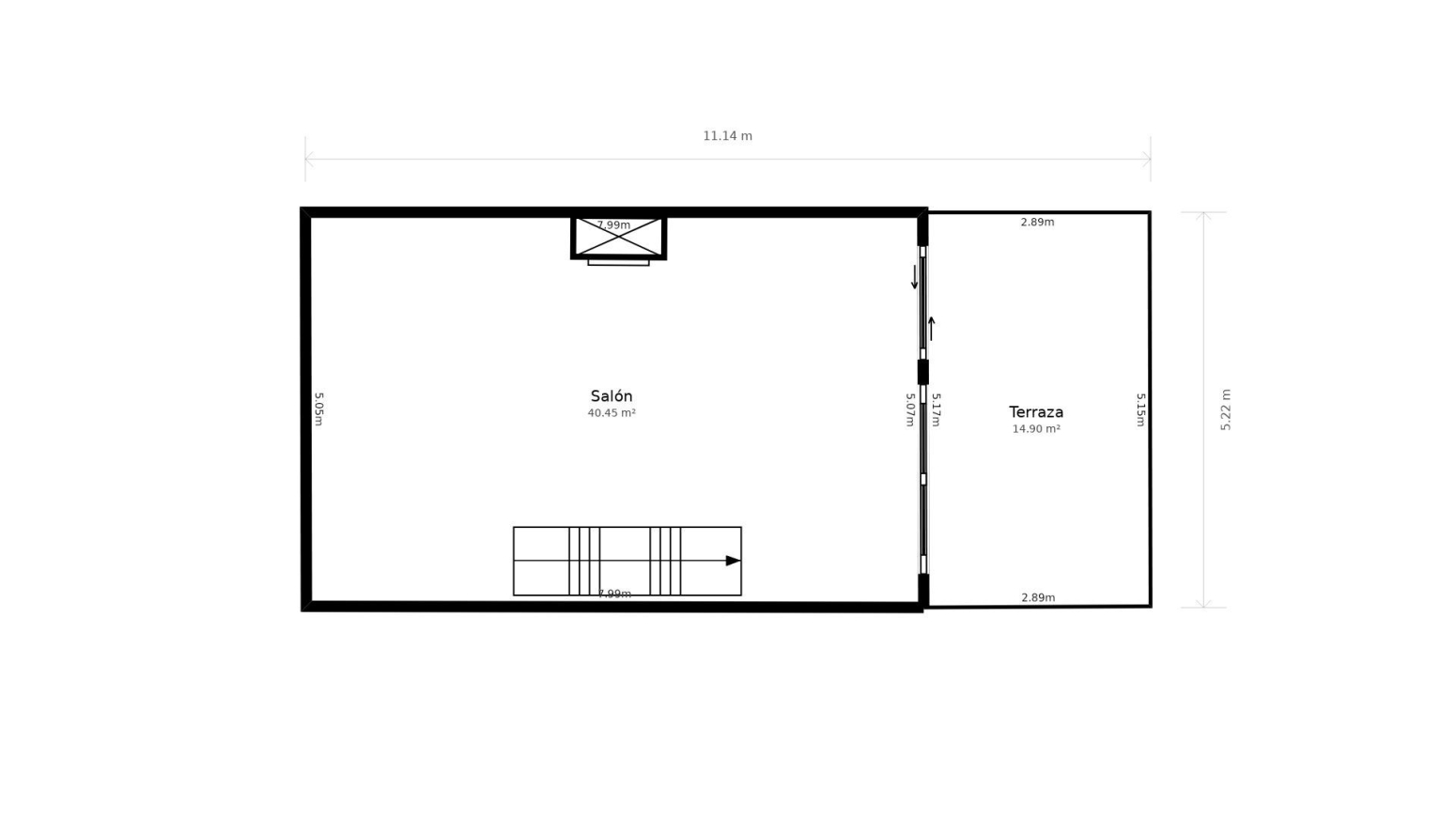
  • Planta 2:
    • Sala diàfana de 40 m² amb armaris encastats i xemeneia

Altres Característiques

  • Placas solars (consum elèctric de 30 €/mes)
  • Pàrquing inclòs en el preu

* El preu no inclou impostos ni despeses de gestió.

CARACTERÍSTIQUES

Referència

91811

Superfície finca (m²)

Preu

410.000 €

Superfície útil (m²)

190

Tipus d’immoble

Casas o chalets

Habitacions

4

Població

Terrassa

Banys

2

Província

Barcelona

Piscina

Consum energètic

N/D

Classe energètica

N/D

Emissions CO₂

N/D

Classe Emissions

N/D