Preu: 275.000 €

DESCRIPCIÓ

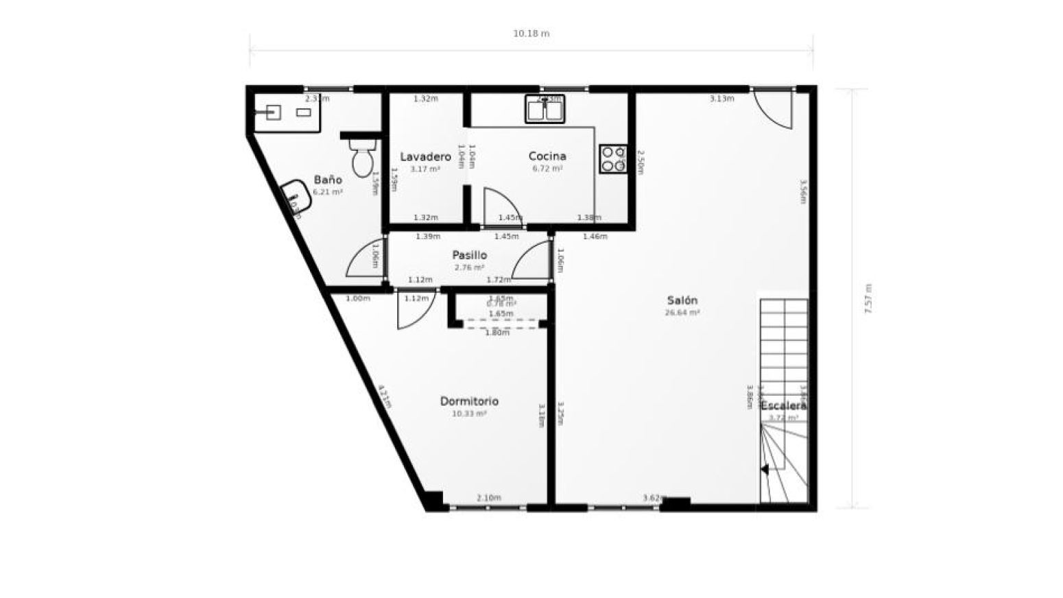
Descripció de la Vivenda

REF. 80217 – Presentem un còmode i funcional dúplex, ideal per a qui busca amplitud i versatilitat en una zona tranquil·la i ben comunicada.

El pis compta amb dos accessos independents, un a cada planta, la qual cosa permet gaudir d’una distribució pràctica i flexible. Disposa de 3 habitacions dobles i 1 bany complet, amb estances àmplies i una bona organització de l’espai.

Encara que la vivenda no té sortida exterior, ofereix una gran zona de jocs o espai polivalent, perfecta per gaudir en família, muntar una zona d’oci o una àrea de treball àmplia i còmoda.

A més, el preu inclou una plaça de pàrquing i un traster, aportant comoditat i emmagatzematge extra al dia a dia.

Aquest dúplex té personalitat i està pensat per aprofitar cada racó, amb bona ventilació interior i una distribució que combina funcionalitat i confort. És ideal per a qui busca espai, tranquil·litat i practicitat.

Característiques de la Vivenda

  • Sala d’estar-Menjador de 27 m²
  • Cuina de 7 m²
  • Rentador de 3 m²
  • Habitació DOBLE de 10 m²
  • Habitació DOBLE de 12 m²
  • Habitació DOBLE de 13 m²
  • Zona polivalent de 37 m²
  • Bany complet de 6 m²
  • PÀRQUING I TRASTER INCLOSOS EN EL PREU

*El preu no inclou impostos ni despeses de gestió.

CARACTERÍSTIQUES

Referència

80217

Superfície finca (m²)

Preu

275.000 €

Superfície útil (m²)

132

Tipus d’immoble

Pisos

Habitacions

3

Població

Castellar del Vallès

Banys

1

Província

Barcelona

Piscina

No

Consum energètic

N/D

Classe energètica

D

Emissions CO₂

N/D

Classe Emissions

E